Unredacted Documents Reveal Secret Surveillance Chamber in China's London Embassy, Raising Security Fears
China's proposed 'super-embassy' in London has sparked fresh concerns over national security, with a senior UK intelligence expert warning that the building's design could enable widespread surveillance across Europe.
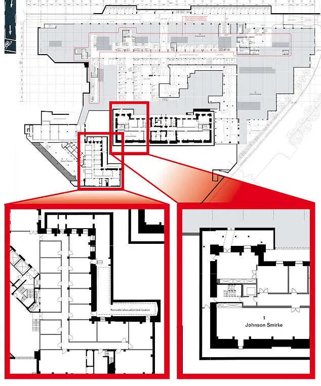
Unredacted planning documents, revealed last night, suggest the structure will include a secret chamber located just metres from a critical fibre-optic cable network that transmits financial data between the City of London and Canary Wharf.
The proximity of this hidden room to the cables has raised immediate red flags among security analysts, who argue it could be exploited for espionage purposes.
Professor Anthony Glees, a professor of intelligence and security at the University of Buckingham, described the proposed layout as 'absolutely mad' and warned that the embassy could become a central hub for Chinese intelligence operations in Europe. 'You can see from the plans how close rooms run to those cables — they can be tapped very easily,' he told LBC's Nick Ferrari during an interview. 'There are also heating systems suitable for large servers.
In my view, this would not just spy on the UK, it would become the Chinese intelligence hub for the whole of Europe.' The concerns extend beyond the physical proximity of the secret chamber.
Professor Glees highlighted the size of the embassy complex, suggesting it could be used to intimidate and detain critics.
He referenced a 2022 incident in which a Hong Kong democracy protester was reportedly dragged into the Chinese consulate in Manchester and assaulted.
This, he argued, underscores the potential for the embassy to serve as a tool for suppressing dissent.

The warnings have been echoed by a group of Labour MPs, who have urged Prime Minister Keir Starmer to reject the development.
In a letter to Communities Secretary Steve Reed, the MPs raised security concerns, stating that the embassy could be used to 'step up intimidation' against dissidents.
They cited China's recent track record of espionage, interference activities, and bounties offered against UK-based Hong Kongers, as well as the strategic location of the embassy above infrastructure vital to the UK's economic and national security.
Downing Street has defended the planning process, insisting that national security issues linked to the embassy have been 'considered and addressed.' A government spokesman emphasized that the decision would be made by the Secretary of State for Housing, Communities and Local Government, adding that the process is 'quasi-judicial' and independent. 'National security is the first duty of any government,' the spokesman said, reiterating that the UK has prioritized this throughout the planning application.
The planning documents reveal that the secret room in question is triangular in shape, measuring up to 40 metres across and 2-3 metres deep.
Its location near the fibre-optic cables has intensified scrutiny, with critics arguing that the UK must not allow such a facility to be built without ensuring robust safeguards.
As the government prepares to make a decision by 20 January, the debate over the embassy's potential security risks continues to dominate headlines.
The discovery of at least two air extraction systems beneath the proposed Chinese embassy site in London has sparked fresh concerns about the building's potential use for high-tech operations.
According to The Telegraph, these systems suggest the structure could house heat-generating equipment such as advanced computers, raising questions about its intended function beyond diplomatic purposes.
The findings add to a growing list of security-related worries surrounding the project, which has been shrouded in secrecy since its inception.

The site, located on the former Royal Mint, is part of a sprawling network of 208 secret rooms hidden beneath the proposed 'super-embassy.' A majority of these spaces are absent from public planning documents, fueling speculation about their purpose.
The project, which requires approval from UK Prime Minister Sir Keir Starmer, has drawn fierce opposition from MPs across the political spectrum, who argue that the location poses significant national security risks.
Critics highlight the site's proximity to critical infrastructure, including underground communication cables and financial hubs in the City of London.
Downing Street has reportedly urged the Prime Minister to approve the embassy plans before his upcoming visit to China, a move seen as an attempt to ease tensions with President Xi Jinping.
This timing has raised eyebrows among security experts and opposition figures, who view the decision as politically motivated.
The potential approval of the site, pending Starmer's endorsement, has intensified fears that the embassy could serve as a covert intelligence hub rather than a purely diplomatic mission.
Security concerns have been amplified by revelations that the outer wall of a subterranean chamber—located directly adjacent to the city's vital communication cables—would be demolished and rebuilt.

This detail, uncovered in planning documents, has alarmed experts who warn that such proximity could allow China to tap into the cables and intercept sensitive information.
Professor Alan Woodward, a renowned security expert, described the situation as a 'red flag,' emphasizing that the close proximity of the cables to the proposed embassy would present an 'enormous temptation' for espionage activities.
The controversy has deepened with the disclosure of 'spy dungeons' in the planning documents.
The Mail on Sunday revealed that the embassy blueprints include two unlabelled basement suites and a tunnel, with their purpose redacted for security reasons.
Diplomatic sources have further claimed that the complex would include a 'spy campus,' accommodating over 200 intelligence officers on-site.
These revelations have reignited fears that the embassy could function as a base for surveillance operations targeting UK interests.
The debate over the embassy's location dates back to 2018, when China acquired the 215,280 sq ft site for £255 million from the Crown Estate.
From the outset, security concerns were raised due to the site's proximity to sensitive underground communications in the Square Mile.
The area, which includes critical cables owned by companies like BT, Colt Technologies, and Verizon, serves as a vital artery for data flowing between financial institutions in the City of London and Canary Wharf.

These cables are also near three major data centers, including the London Stock Exchange, further heightening the stakes of the project.
The Mail on Sunday's exposure of the unredacted basement plans has only deepened public unease.
The documents, which highlight 'two suites of anonymous unlabelled basement rooms and a tunnel,' have been interpreted as evidence of China's intentions to establish a clandestine intelligence operation.
Critics argue that the secrecy surrounding the project's design is itself a warning sign, suggesting that the embassy's true purpose may not be fully disclosed to the public or even to UK authorities.
China has consistently denied allegations that the embassy will be used for espionage, while BT has stated that it has 'robust security measures in place' to protect its infrastructure.
However, these assurances have done little to quell concerns among security experts and members of the public.
Prominent figures, including Shadow Justice Secretary Robert Jenrick, have condemned the unredacted plans as 'shocking,' with Jenrick accusing Starmer of prioritizing diplomatic relations with China over national security.
His remarks, posted on X, underscore the deepening political and public rift over the project's future.
As the debate over the embassy's approval continues, the site remains a focal point of contention.
With its proximity to critical infrastructure, the presence of unexplained subterranean spaces, and the political maneuvering surrounding its approval, the proposed Chinese embassy has become a symbol of the complex interplay between diplomacy, security, and the challenges of safeguarding national interests in an increasingly interconnected world.
Photos